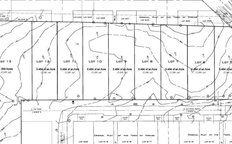
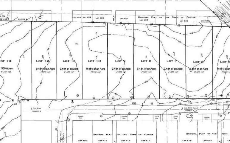
Land for Sale - Lot 9 W 2nd Street, Fowler, IN 47944 - 0.48 acres

0.48 acres in Benton County, IN

Lot 9 W 2nd Street, Fowler, IN | Lat/Lng:  40.6205, -87.3260

$49,900
0.48 ac.
12/06/2025
ACTIVE
Main Listing ImageMain Listing Image

Description

Lots 9, 10, and 12 are available. Almost 1/2 acre each! Ready to build with utilities present and NO HOA! Great schools in a fantastic, safe small town, yet only minutes to West Lafayette.

Details

CountyBenton
Zipcode47944
BrokerageLafayette Listing Realty LLC
Brokerage Linkhttps://land.com
Dustin Robinson
Lafayette Listing Realty LLC
(765) 735-3195
By clicking the button, you agree to our Terms of Use and Privacy Policy.
$ image/svg+xml image/svg+xml image/svg+xml image/svg+xml image/svg+xml image/svg+xml image/svg+xml image/svg+xml image/svg+xml image/svg+xml image/svg+xml image/svg+xml image/svg+xml image/svg+xml image/svg+xml image/svg+xml image/svg+xml image/svg+xml image/svg+xml image/svg+xml image/svg+xml image/svg+xml image/svg+xml image/svg+xml image/svg+xml image/svg+xml image/svg+xml image/svg+xml image/svg+xml image/svg+xml image/svg+xml image/svg+xml image/svg+xml image/svg+xml image/svg+xml image/svg+xml image/svg+xml image/svg+xml image/svg+xml image/svg+xml image/svg+xml image/svg+xml image/svg+xml image/svg+xml image/svg+xml image/svg+xml image/svg+xml image/svg+xml image/svg+xmlimage/svg+xml image/svg+xml image/svg+xml image/svg+xml image/svg+xml image/svg+xml image/svg+xml image/svg+xml image/svg+xml image/svg+xml image/svg+xml image/svg+xml image/svg+xml image/svg+xml image/svg+xml image/svg+xml image/svg+xml image/svg+xml image/svg+xml image/svg+xml image/svg+xml image/svg+xml image/svg+xml image/svg+xml image/svg+xml $image/svg+xmlimage/svg+xmlimage/svg+xml image/svg+xml image/svg+xml