Land for Sale - 0 Upper Union Street 73230551, Franklin, MA 02038 - 6.21 acres

6.21 acres in Norfolk County, MA

0 Upper Union Street 73230551, Franklin, MA | Lat/Lng:  42.0873, -71.4023

$400,000
6.21 ac.
12/18/2024
ACTIVE
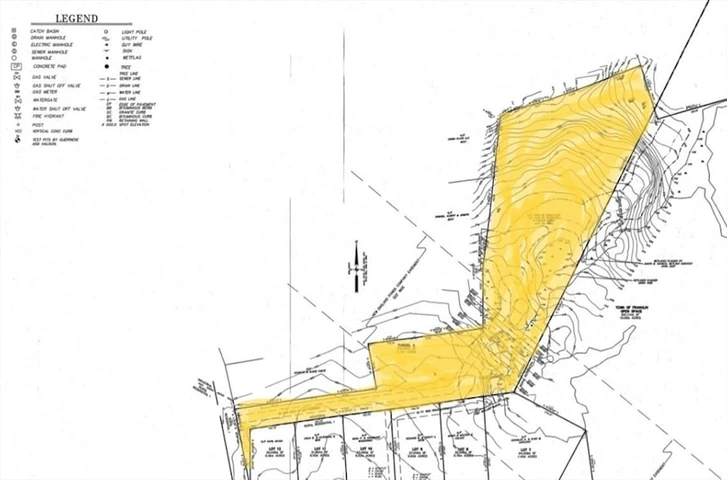
Main Listing ImageMain Listing Image

Description

6.21 Acres zoned Industrial - Great option for Contractors Yard. - Some Wetlands on site - See Plot Plan Attached for NE Power easement and wetlands - Buildable parcel is located approx. 750' from the street. Buyer is responsible for all approvals and permits. Call Listing Agent for more details.

Details

CountyNorfolk
Zipcode02038
Property Type OneUndeveloped Land
BrokerageCostello Realty
Brokerage Linkhttps://land.com
Christine Molla
Costello Realty
(774) 614-8210
By clicking the button, you agree to our Terms of Use and Privacy Policy.
$ image/svg+xml image/svg+xml image/svg+xml image/svg+xml image/svg+xml image/svg+xml image/svg+xml image/svg+xml image/svg+xml image/svg+xml image/svg+xml image/svg+xml image/svg+xml image/svg+xml image/svg+xml image/svg+xml image/svg+xml image/svg+xml image/svg+xml image/svg+xml image/svg+xml image/svg+xml image/svg+xml image/svg+xml image/svg+xml image/svg+xml image/svg+xml image/svg+xml image/svg+xml image/svg+xml image/svg+xml image/svg+xml image/svg+xml image/svg+xml image/svg+xml image/svg+xml image/svg+xml image/svg+xml image/svg+xml image/svg+xml image/svg+xml image/svg+xml image/svg+xml image/svg+xml image/svg+xml image/svg+xml image/svg+xml image/svg+xmlimage/svg+xml image/svg+xml image/svg+xml image/svg+xml image/svg+xml image/svg+xml image/svg+xml image/svg+xml image/svg+xml image/svg+xml image/svg+xml image/svg+xml image/svg+xml image/svg+xml image/svg+xml image/svg+xml image/svg+xml image/svg+xml image/svg+xml image/svg+xml image/svg+xml image/svg+xml image/svg+xml image/svg+xml image/svg+xml $image/svg+xmlimage/svg+xmlimage/svg+xml image/svg+xml image/svg+xml